Refine Search
Location
Radius
Min Beds
Min Price
Min Price
Max Price
Max Price
Location
Radius
Min Beds
Min Price
Min Price
Max Price
Max Price
 

Retreat Place, Hackney, E9

Sold Subject To Contract

£480,000

4
1
1
Gallery (12)

Summary

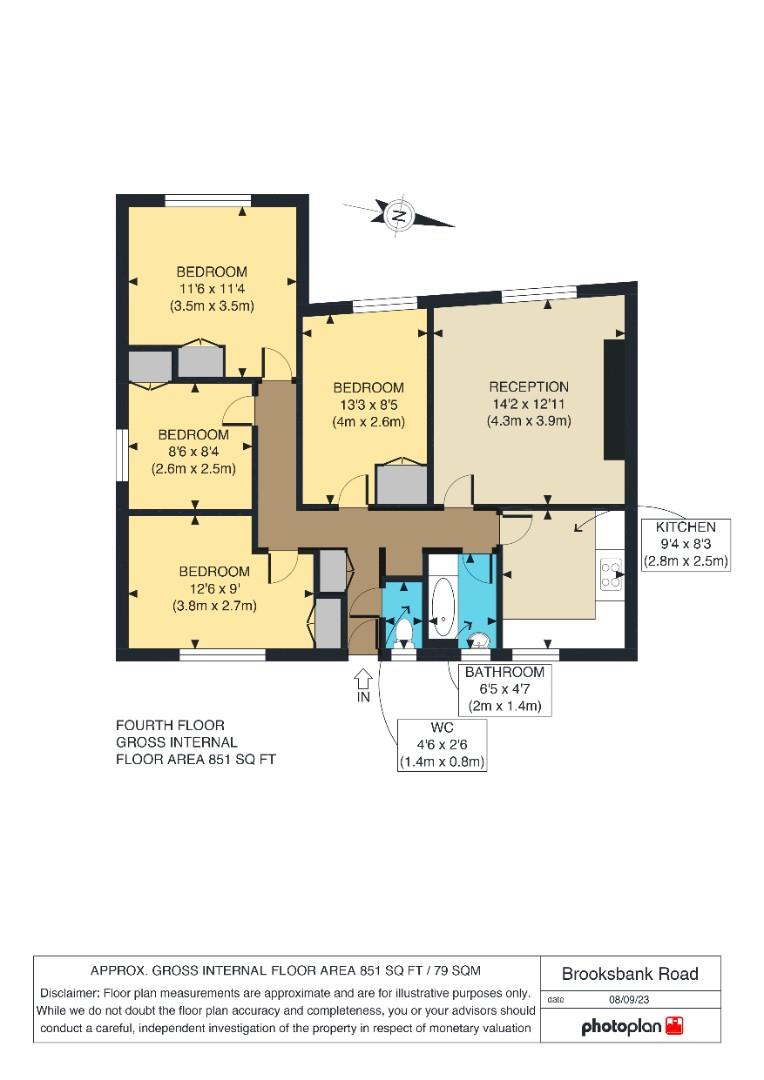
A spacious and bright four bedroom apartment, ideally located within a quiet cul-de-sac location, just a short walking distance to Hackney Central, Homerton & London Fields Train Stations, with direct trains to Liverpool Street, Stratford International (Including Westfield Shopping Mall) and Highbury & Islington Stations.Surrounded by a variety of trendy eateries, coffee houses, local amenities and nearby parks and open spaces, whilst providing easy access to The City, Canary Wharf and the West End. The property is situated on the corner of the 4th floor, of a secure purpose built development, with lift access and off street parking (Permit required), and comprises a light & airy living room, separate kitchen, four good size bedrooms plus bathroom with separate WC. In need of modernisation. Chain Free. 108 Years (Approx) Lease Remaining. Annual Service Charge: £2000 Approx. Sole Agent. Ideal for first time buyer. Council Tax Band: CEMAIL AGENT FOR VIEWING!

Full Description

Reception (4.32m x 3.94m (14'2 x 12'11))

Kitchen (2.84m x 2.51m (9'4 x 8'3))

Bedroom 1 (3.51m x 3.45m (11'6 x 11'4))

Bedroom 2 (3.81m x 2.74m (12'6 x 9'))

Bedroom 3 (4.04m x 2.57m (13'3 x 8'5))

Bedroom 4 (2.59m x 2.54m (8'6 x 8'4))

Bathroom (1.96m x 1.40m (6'5 x 4'7))

WC (1.37m x 0.76m (4'6 x 2'6))

Viewing & Disclaimer

Viewing
Please contact us on 020 7794 2008 if you wish to arrange a viewing appointment for this property, or require further information.

Energy Performance Certificate
Click here to view the Energy Efficiency Rating and Environmental Impact Rating for this property.


Disclaimer
PropertyTime endeavour to maintain accurate depictions of properties in Virtual Tours, Floor Plans and descriptions, however, these are intended only as a guide and purchasers must satisfy themselves by personal inspection.

Key Features
  • Spacious & Bright
  • 4 Double Bedrooms
  • Quiet Cul-de-sac
  • Top Floor
  • Lift Access
  • Off Street Parking
  • Secure Development
  • Chain Free
  • Victoria Park & Well Street Common
  • Local Markets
IE8 Alert! Cookie Alert!

To get the best possible experience using our website we recommend you upgrade to a modern web browser. More info

Location
Radius
Min Beds
Min Price
Min Price
Max Price
Max Price
Location
Radius
Min Beds
Min Price
Min Price
Max Price
Max Price